

Mardin’in Mâristan (Mesken) mahallesinde cami, medrese, çeşme ve hamamdan oluşan külliye halk arasında Mâristan adıyla da anılır. Anadolu’da külliye şeklinde inşa edilen ilk yapı toplulukları arasında yer alır; aynı zamanda en erken tıp medresesi ve şifâhâne örneklerindendir. Mardin Artuklu Sultanı Necmeddin İlgazi’nin (1104-1122) kardeşi Emînüddin’in başlattığı inşaat sultan tarafından tamamlatılmıştır.
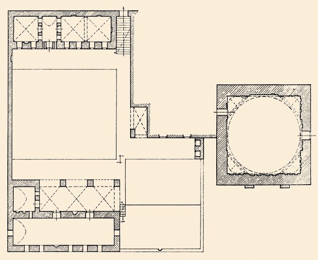
Külliye eğimli bir arazi üzerine kurulmuştur; geniş avluya, kuzeydeki medresenin yanında bulunan basamaklı bir cümle kapısından girilir. Mâristan Çeşmesi denilen çeşme, avlunun doğusunda yer alan iki kemerli bir kısmın içindedir. Medrese üç açıklıklı bir girişten sonra batıda tek, doğuda iki bölümlü olmak üzere dikdörtgen ve çapraz tonozlarla örtülü iki ayrı mekândan meydana gelir. Avlunun güneyindeki beşik tonozlu cami, üç çapraz tonozun örttüğü son cemaat yeriyle birlikte XIV-XV. yüzyıllarda yenilenmiş olduğu intibaını vermektedir. Caminin doğu tarafında bulunan namazgâh mahiyetindeki mihraplı ve taş döşeli yüksek platform da tamamen yeni korkuluklara sahiptir.
Külliyenin ana yapısı olduğu anlaşılan hamamlı bölüm büyük ölçüde haraptır. Yıkılmasından önce tesbit edilen plan krokisinden, dört kollu bir sıcaklığının olduğu ve buraya çeşmenin arkasındaki yatay bir bağlantı ile geçildiği anlaşılmaktadır. Bugün de ayakta duran büyük ve tek kubbeli soyunmalık (camekân) kısmı niş ve sekilerle donatılmıştır. Çapraz konumdaki iki büyük bölüm arasında yer alan kare mekânla dar koridorların mahiyetleri anlaşılmamaktadır. Ancak tabii sıcak su kaynağına sahip bulunan hamam ile bağlı bölümlerinin su tedavisi için kullanıldığını ve külliyenin medresede nazarî, hamam bölümlerinde tatbikî bilgiler verilen bir tıp medresesi-şifâhâne olarak tasarlandığını düşünmek mümkündür.
Ara Altun, Mardin’de Türk Devri Mimarisi, İstanbul 1971, s. 67-71.
Gabriel, Voyages, s. 11.
Kâtib Ferdî, Mardin Mülûk-i Artukiyye Târihi (nşr. Ali Emîrî), İstanbul 1331, s. 15, not 1.
Süheyl Ünver, Selçuk Tababeti, Ankara 1940, s. 16.
a.mlf., Anadolu’da Artuklu Devri Türk Mimarisi’nin Gelişmesi, İstanbul 1978, s. 14-21.
a.mlf., Ortaçağ Türk Mimarisinin Anahatları İçin Bir Özet, İstanbul 1988, s. 39.


Henüz Tartışma Girilmemiştir
"EMÎNÜDDİN KÜLLİYESİ" maddesi için tartışma başlatın